
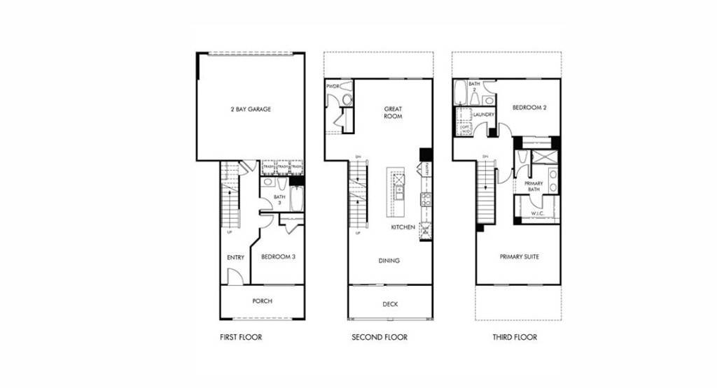
3 Beds
4 Baths
1,791 SqFt
3 Beds
4 Baths
1,791 SqFt
Key Details
Property Type Condo
Sub Type Condominium
Listing Status Pending
Purchase Type For Sale
Square Footage 1,791 sqft
Price per Sqft $365
Subdivision Stratus
MLS Listing ID OC25183407
Bedrooms 3
Full Baths 3
Half Baths 1
Construction Status Under Construction
HOA Fees $244/mo
HOA Y/N Yes
Year Built 2025
Lot Dimensions Builder
Property Sub-Type Condominium
Property Description
Location
State CA
County Los Angeles
Area 687 - Pomona
Zoning RES
Rooms
Main Level Bedrooms 1
Interior
Interior Features Balcony, Separate/Formal Dining Room, High Ceilings, Open Floorplan, Pantry, Recessed Lighting, Smart Home, Bedroom on Main Level, Utility Room, Walk-In Closet(s)
Cooling Central Air, ENERGY STAR Qualified Equipment, High Efficiency
Flooring Vinyl
Fireplaces Type None
Fireplace No
Appliance Dishwasher, Gas Range, Microwave
Laundry Gas Dryer Hookup
Exterior
Parking Features Garage
Garage Spaces 2.0
Garage Description 2.0
Pool Association
Community Features Street Lights, Suburban, Sidewalks
Amenities Available Barbecue, Pool
View Y/N Yes
View Courtyard
Roof Type Tile
Total Parking Spaces 2
Private Pool No
Building
Lot Description Landscaped
Dwelling Type Multi Family
Story 3
Entry Level Three Or More
Sewer Public Sewer
Water Public
Level or Stories Three Or More
New Construction Yes
Construction Status Under Construction
Schools
High Schools Ganesha
School District Pomona Unified
Others
HOA Name Stratus
Senior Community No
Acceptable Financing Conventional
Listing Terms Conventional
Special Listing Condition Standard

GET MORE INFORMATION

Agent | License ID: 02118739







